トップへ戻る

  • お見積り

    国産コンテナ仕様基礎工事、
    内装、断熱工事、照明、エアコン含む
    195万円

    水回りセット(材工込)国内一流メーカー品仕様
    基礎工事、内装、断熱工事、照明、エアコン含む
    295万円


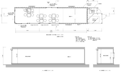
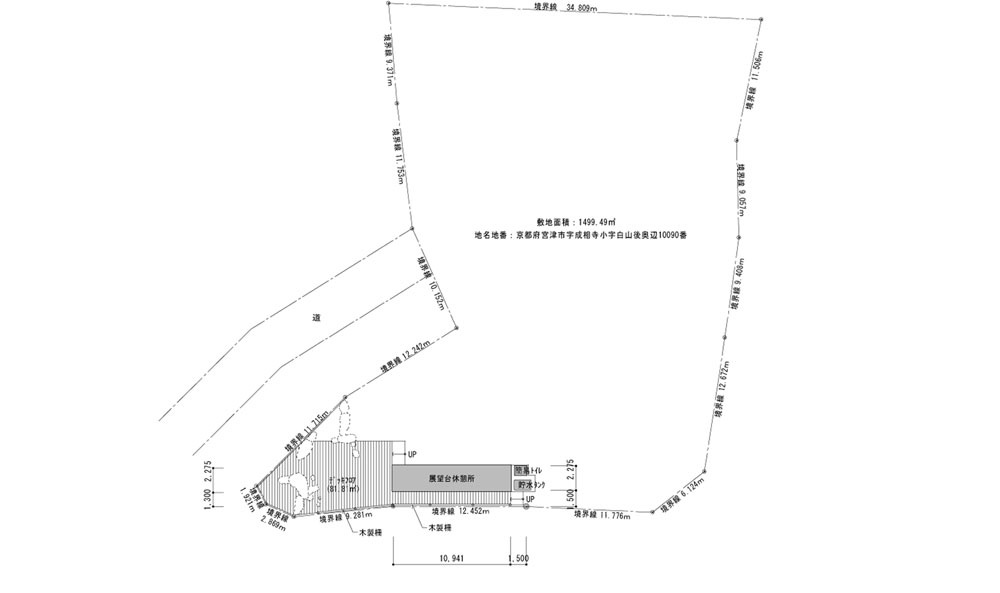
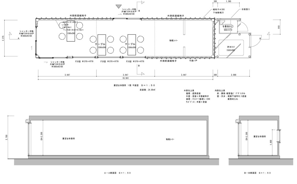
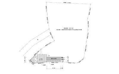
    <<< 設計図をクリックすると拡大画像が見れます。


  • JRコンテナ買い付け運搬

  • コンテナ作業場入荷



  • 開口及び補強





  • コンテナ補強

  • 壁下地

  • 断熱吹き付け





  • 基礎

  • 下地完成

  • 外壁錆止め下地塗装

  • 外壁仕上げ塗装

  • 分割運搬

  • 申請地への運搬

  • 申請地到着

  • 設置前のお祓い



  • 設置開始









  • 分割3台目設置















  • 設置完了

コンテナハウスに関するご相談など、
お気軽にご相談下さい。

株式会社 恵巧建設
ビーコン コンテナハウス事業部
  • 電話番号075-495-8874
  • お問合せ
Copyright(C)2009-2016 keikou kensetsu. All Rights Reserved.